Wprowadzenie
Dla wielu inwestorów projekt domu to teczka pełna rysunków, symboli i skrótów, które na pierwszy rzut oka niewiele mówią. W praktyce jednak to właśnie umiejętność czytania projektu domu decyduje o tym, czy inwestor panuje nad budową, czy jest zdany wyłącznie na decyzje ekipy budowlanej.
W 2026 roku, gdy tempo prac jest szybkie, a koszty błędów wysokie, podstawowe zrozumienie projektu domu staje się jedną z najważniejszych kompetencji inwestora.
Dlaczego inwestor powinien rozumieć projekt domu?
Inwestor nie musi być inżynierem ani kierownikiem budowy. Powinien jednak wiedzieć:
co dokładnie jest budowane
jak ma wyglądać dany etap
czy wykonanie jest zgodne z projektem
Brak tej wiedzy powoduje, że wiele decyzji zapada bez udziału inwestora — często z negatywnym skutkiem finansowym.
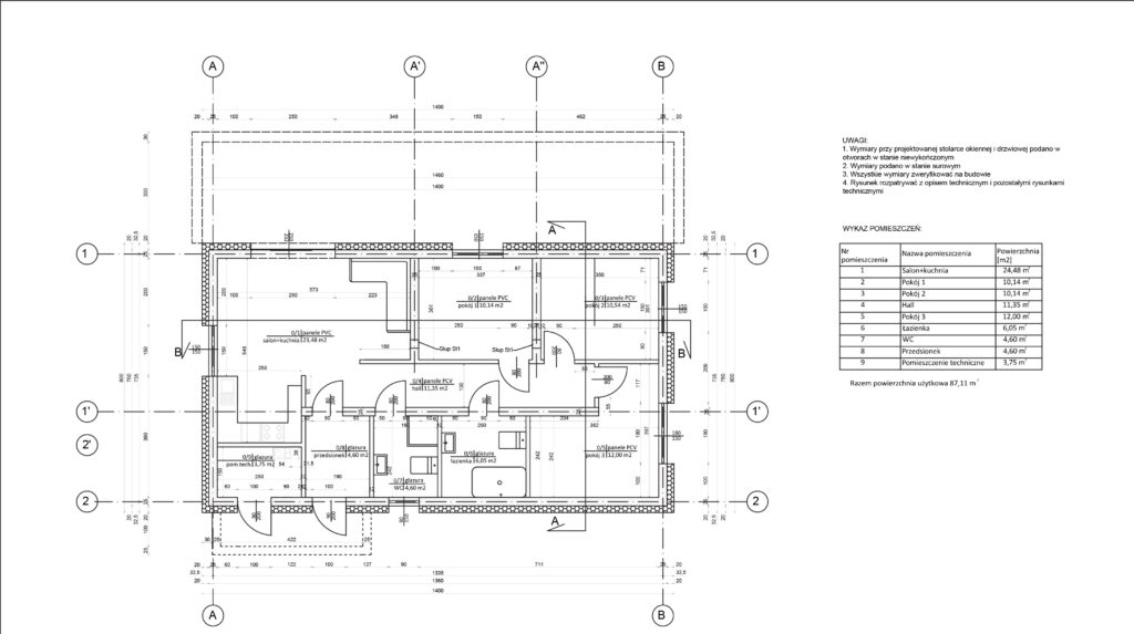
Projekt domu to nie jeden rysunek
Jednym z najczęstszych błędów jest skupianie się wyłącznie na rzutach pomieszczeń. Tymczasem projekt domu składa się z kilku kluczowych części, z których każda ma znaczenie.
Najważniejsze elementy projektu to:
rzuty kondygnacji
przekroje budynku
rysunki fundamentów
rysunki konstrukcyjne
detale techniczne
Każda z tych części odpowiada za inny etap budowy.
Rzuty – co naprawdę pokazują?
Rzut kondygnacji pokazuje:
układ ścian
wymiary pomieszczeń
lokalizację drzwi i okien
grubości ścian
To na ich podstawie wytyczane są ściany i otwory. Błędne odczytanie rzutu może skutkować:
złymi wymiarami pomieszczeń
problemami z montażem stolarki
kosztownymi poprawkami
Przekroje – klucz do zrozumienia wysokości i warstw
Przekroje są często pomijane, a to one pokazują:
wysokości kondygnacji
grubości stropów
warstwy podłóg i dachów
Bez ich zrozumienia łatwo o błędy przy:
wylewkach
izolacjach
montażu schodów
Fundamenty – tu nie ma miejsca na improwizację
Część fundamentowa projektu określa:
głębokość posadowienia
szerokości ław
zbrojenie
poziomy izolacji
Każde odstępstwo w tym zakresie może skutkować:
problemami konstrukcyjnymi
zawilgoceniem
pęknięciami ścian
Dlatego inwestor powinien dokładnie wiedzieć, co projekt zakłada na etapie fundamentów.
Detale techniczne – najmniejsze rysunki, największe znaczenie
Detale pokazują miejsca newralgiczne:
połączenia ścian
izolacje
strefy mostków termicznych
To właśnie w tych miejscach powstaje większość problemów w gotowych domach. Ich pominięcie to częsty błąd na budowie.
Jak projekt pomaga kontrolować ekipę budowlaną?
Inwestor, który zna projekt:
widzi, czy ściany powstają w odpowiednich miejscach
potrafi zapytać o konkretne rozwiązania
szybciej wychwytuje niezgodności
Nie chodzi o konflikt z ekipą, ale o świadome uczestnictwo w budowie.
Najczęstsze zaskoczenia inwestorów wynikające z braku znajomości projektu
Brak zrozumienia projektu prowadzi do sytuacji takich jak:
„okno miało być większe”
„ściana miała być gdzie indziej”
„nie wiedziałem, że tu będzie słup”
Większość takich problemów jest widoczna w projekcie — tylko trzeba umieć go czytać.
Czy trzeba znać każdy symbol i oznaczenie?
Nie. Ale warto rozumieć:
podstawowe oznaczenia ścian
symbole okien i drzwi
linie przekrojów
opisy warstw
To wystarczy, aby uniknąć największych niespodzianek.
Podsumowanie
Projekt domu to instrukcja budowy zapisana językiem technicznym. Inwestor, który poświęci czas na jego zrozumienie, zyskuje kontrolę nad procesem budowy i ogranicza ryzyko kosztownych błędów. W 2026 roku umiejętność czytania projektu domu to nie specjalistyczna wiedza — to podstawowe narzędzie każdego świadomego inwestora.
Pobierz instrukcję krok po kroku
👉 Pobierz poradnik PDF:
Instrukcja budowy domu murowanego 70 m² – krok po kroku
👉 Zobacz również:
Instrukcja budowy domu szkieletowego 70 m²






