eCommerce WordPress Themes

🏡 Projekt domu szkieletowego do 70 m²

Ten projekt to efekt ponad 8 miesięcy pracy, dopracowany w każdym szczególe.
Przygotowaliśmy go tak, aby każdy, kto marzy o własnym domu, mógł go zbudować samodzielnie – bez konieczności zaciągania 30-letniego kredytu.

Postawiliśmy na najprostsze i sprawdzone od lat rozwiązania – bez zbędnych udziwnień i kosztownych elementów.
Priorytetem była prosta bryła, przemyślany układ i satysfakcjonujący metraż, który zapewni wygodę i niskie koszty realizacji.

Po wielu miesiącach pracy możemy powiedzieć jedno:
💪 Udało się stworzyć projekt, który naprawdę daje szansę na własny dom – prosty, funkcjonalny i dostępny dla każdego.


🎁 Odbierz GRATISY o wartości 1497 zł!

Marzysz o własnym domu idealnie dopasowanym do Twojej rodziny?
Teraz to najlepszy moment, by spełnić te marzenia!

Kupując ten projekt domu, otrzymasz pakiet bonusów o łącznej wartości 1497 zł – całkowicie ZA DARMO!

✅ Kompendium Domów – praktyczny przewodnik, który przeprowadzi Cię przez każdy etap budowy bez stresu i kosztownych błędów.
✅ Projekt garażu szkieletowego – wraz z instrukcją budowy krok po kroku, dzięki której zrealizujesz go samodzielnie lub z ekipą.
✅ Projekt wiaty – doskonały dodatek do domu: miejsce na auto, narzędzia lub letni wypoczynek.
Instrukcje budowy domu do tego projektu

👉 Nie czekaj – oferta ograniczona czasowo!
Zyskaj sprawdzony projekt domu i bonusy, które ułatwią Ci budowę oraz pozwolą zaoszczędzić tysiące złotych.

📦 Zamów projekt już dziś i rozpocznij budowę z pewnością i spokojem!
📞 Zamówienia telefoniczne: pon–pt, 10:00–16:00, tel. 531 876 047

Projekty dostępne do wysyłki

 

 

 

Dom z naszego projektu to idealne rozwiązanie na start, bez zbędnego zadłużania się w bankach na olbrzymie kwoty. Z nami zrealizujecie własne marzenia o domu bez kredytu. Uwierzcie nam, że życie bez obciążenia finansowego staje się przyjemniejsze.

Jeżeli masz odrobinę chęci i chcesz żyć bez kredytu taki projekt jest właśnie dla Ciebie. Razem zbudujemy lepszą Polskę!.

Jest to pierwsza w Polsce taka inicjatywa, w której łączy się firma budująca duże domy i firma zajmująca się tylko małymi domami, wypracowany w 8 miesięcy projekt jest efektem tej współpracy.

W każdym naszym projekcie została wpisana zgoda na zmiany, która nie wymaga już kontaktu z nami. Ta domyślna zgoda dopuszcza wykonanie zmian w zakresie:
– zmiany otworów okiennych i drzwiowych oraz okien połaciowych wg potrzeb Inwestora (likwidacja okien i drzwi, zmiana lokalizacji, powiększenie, pomniejszenie)
– przesunięcie drzwi, zmiana układu ścianek działowych
– zmianę stropu
– zmianę konstrukcji dachu

Także podniesienie ściany kolankowej w celu uzyskania wyższego poddasza

Najczęściej zadawane pytania:
Jaki jest kąt dachu? 30 stopni
Czy można zmienić kąt dachu na większy? Tak, wyrażamy zgodę na zmianę konstrukcji dachu
Jakie jest przewidziane źródło ciepła? Charakterystyka do pieca gazowego
Czy mogę zmienić układ pomieszczeń w środku? Tak wyrażamy na to zgodę
Z czego będzie pokrycie dachu? Blacha na rąbek stojący
Czy w domu jest kotłownia? Tak na rzucie po wejściu do mieszkania po lewo pomieszczenie techniczne
Czy mogę poszerzyć lub przedłużyć dom o 2m żeby uzyskać więcej miejsca? Tak, wyrażamy na to zgodę przy adaptacji
Jaka wysokość jest na strychu? 189cm
Czy mogę podwyższyć strych?
 Tak można podwyższyć strych i wykorzystać później jako poddasze podczas adaptacji.

Czy mogę po zakończeniu budowy taki dom rozbudować? Tak można to zrobić poprzez rozbudowę o 35m2 w ten sposób: link lub o większą powierzchnię na pozwolenie na budowę

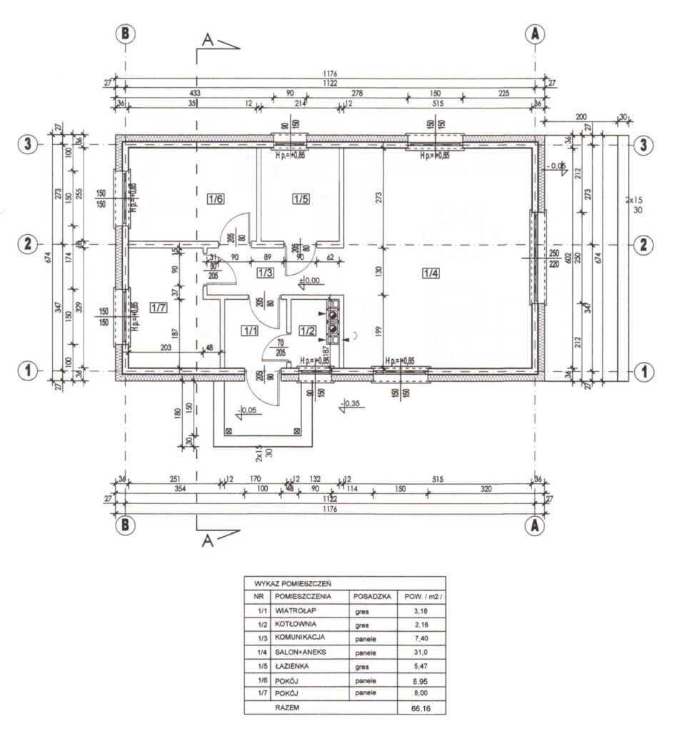
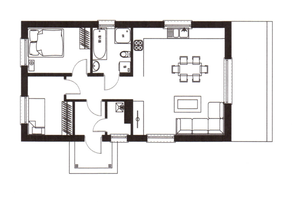
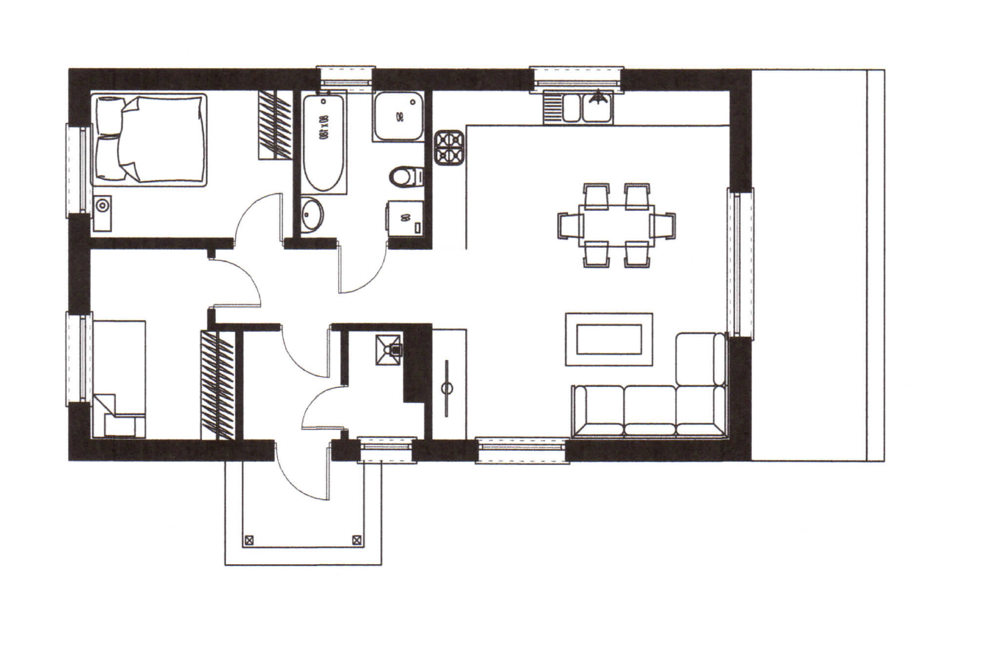
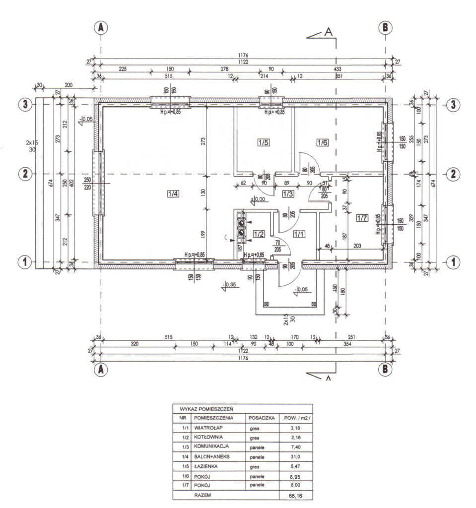
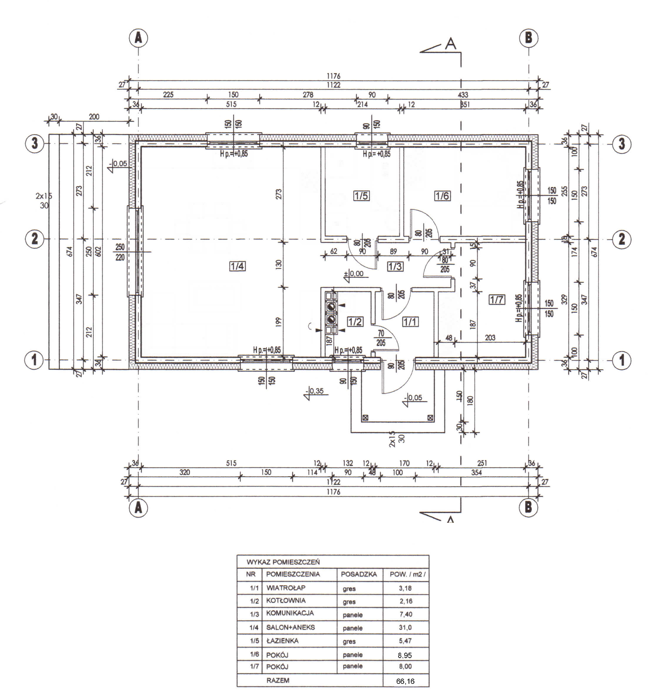
Wiatrołap: 3,18m2
Pomieszczenie techniczne: 2,16m2
Hall: 7,40m2
Kuchnia+salon: 31m2
Łazienka: 5,47m2
Pokój 1: 8,95m2
Pokój 2: 8m2

Powierzchnia użytkowa: 63,60m2
Powierzchnia zabudowy budynku: 79,26m2

Minimalne wymiary działki
Szerokość: 19,76m
Długość: 14,74m

Powierzchnia i wymiary:
Długość: 11,76m
Szerokość: 6,74m
Powierzchnia użytkowa: 63,60m2

Powierzchnia zabudowy: 79,26m2
Kubatura: 360,63m³
Wysokość budynku: 5,52m
Kąt nachylenia dachu: 30°

Technologia i konstrukcja:
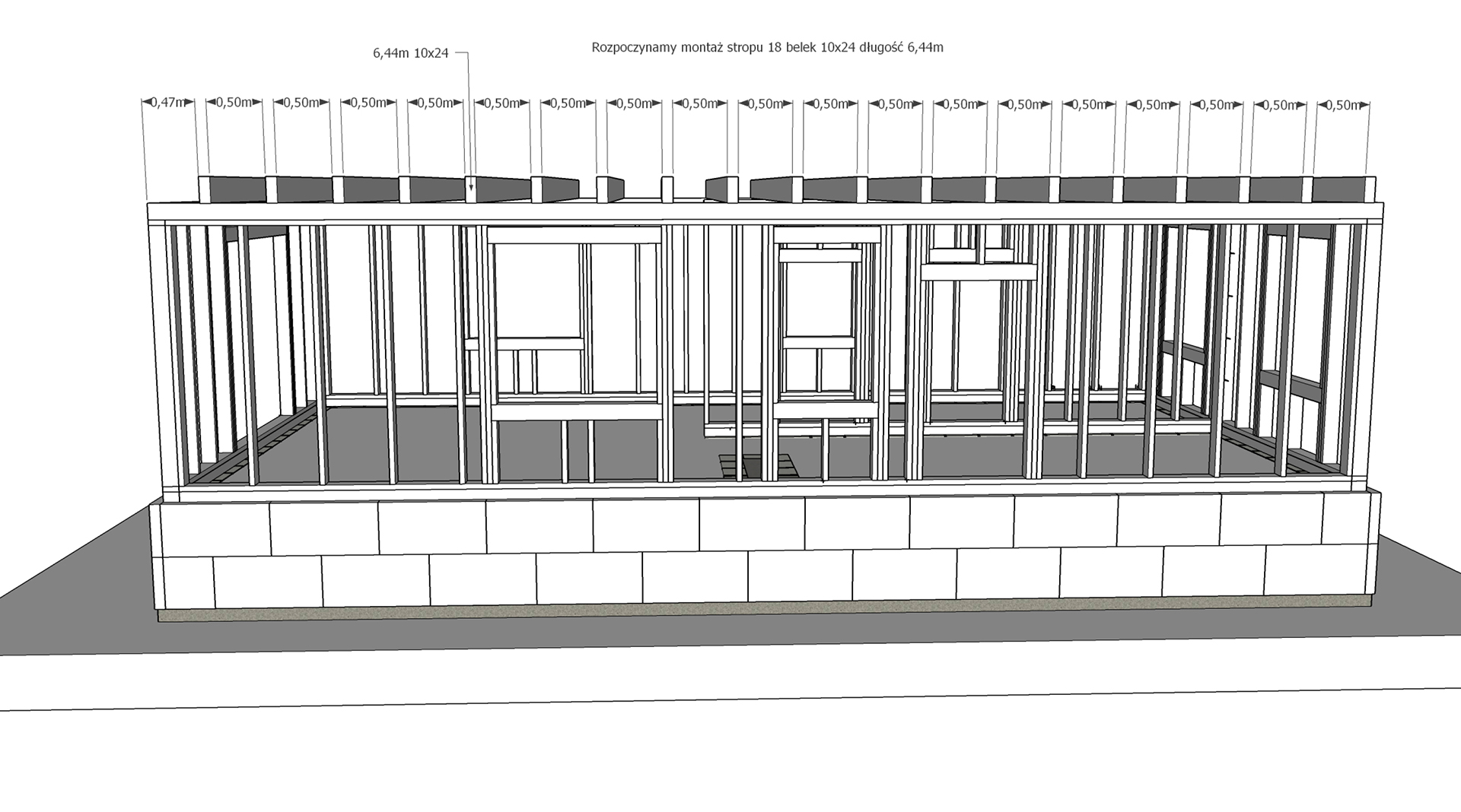
Ściany: drewniane, szkieletowe
Dach: blachodachówka
Technologia: szkieletowy

Projekt zawiera także:
Instalacje wod-kan. i C.O
Instalacje elektryczne

W paczce otrzymasz 4 egzemplarze projektu oraz rachunek.
Dostawa od 1-14 dni przeważnie do 5 dni roboczych.

Na naszych kanałach będą publikowane filmy z budowy domu MUROWANEGO : na kanale Haharbud długie filmy z szczegółowym wytłumaczeniem budowy od A do Z, a na kanale Zbuduj sam dom krótkie filmy z budowy. Zasubskrybuj jeżeli chcesz być na bieżąco.

Szczegółowe instrukcje budowy domu

Wersja

Zwykły, Odbicie lustrzane