zł2,499.00
8 osób przegląda ten projekt teraz
CompareZbuduj sam dom prezentuje wyjątkowy projekt domu na wąską działkę, w którym znajduje się również piwnica.
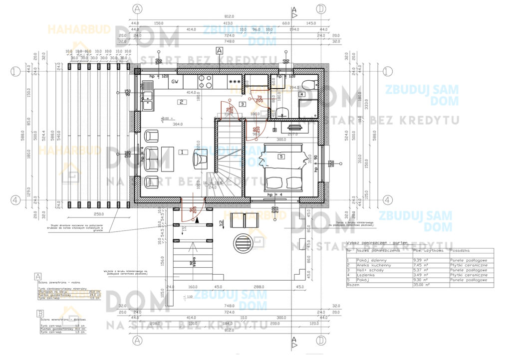
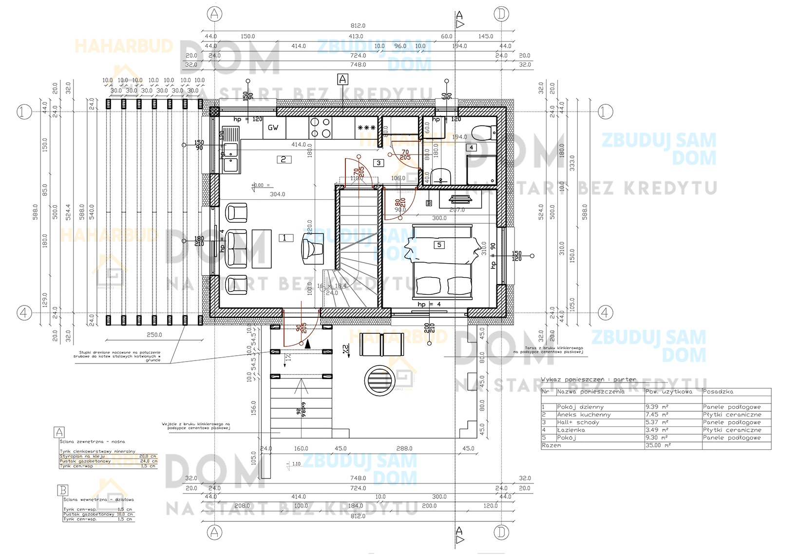
To prosta, funkcjonalna bryła inspirowana domkami 35 m² – właśnie taką powierzchnię użytkową ma parter.
Łączna powierzchnia użytkowa całego domu to 102,65 m².
👉 Nie czekaj – oferta ograniczona czasowo!
Zyskaj sprawdzony projekt domu i bonusy, które ułatwią Ci budowę oraz pozwolą zaoszczędzić tysiące złotych.
📦 Zamów projekt już dziś i rozpocznij budowę z pewnością i spokojem!
📞 Zamówienia telefoniczne: pon–pt, 10:00–16:00, tel. 531 876 047
Projekty dostępne do wysyłki
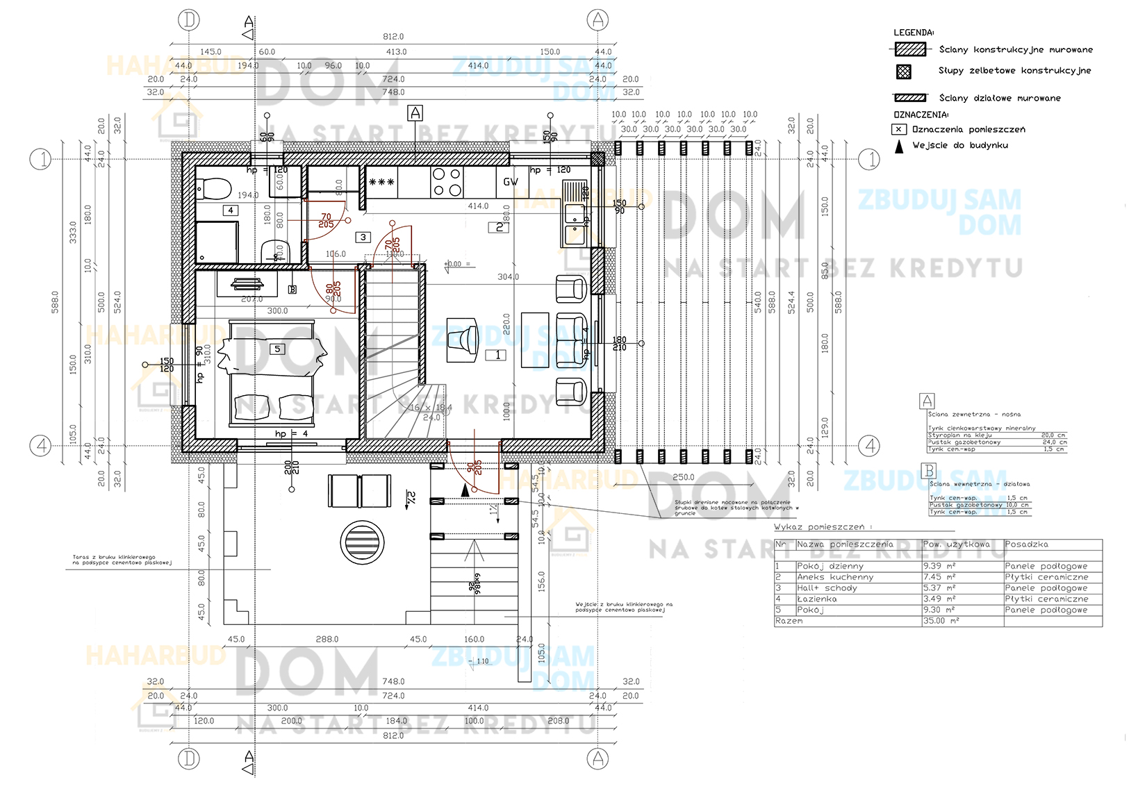
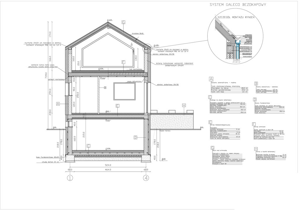
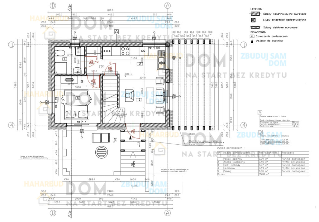
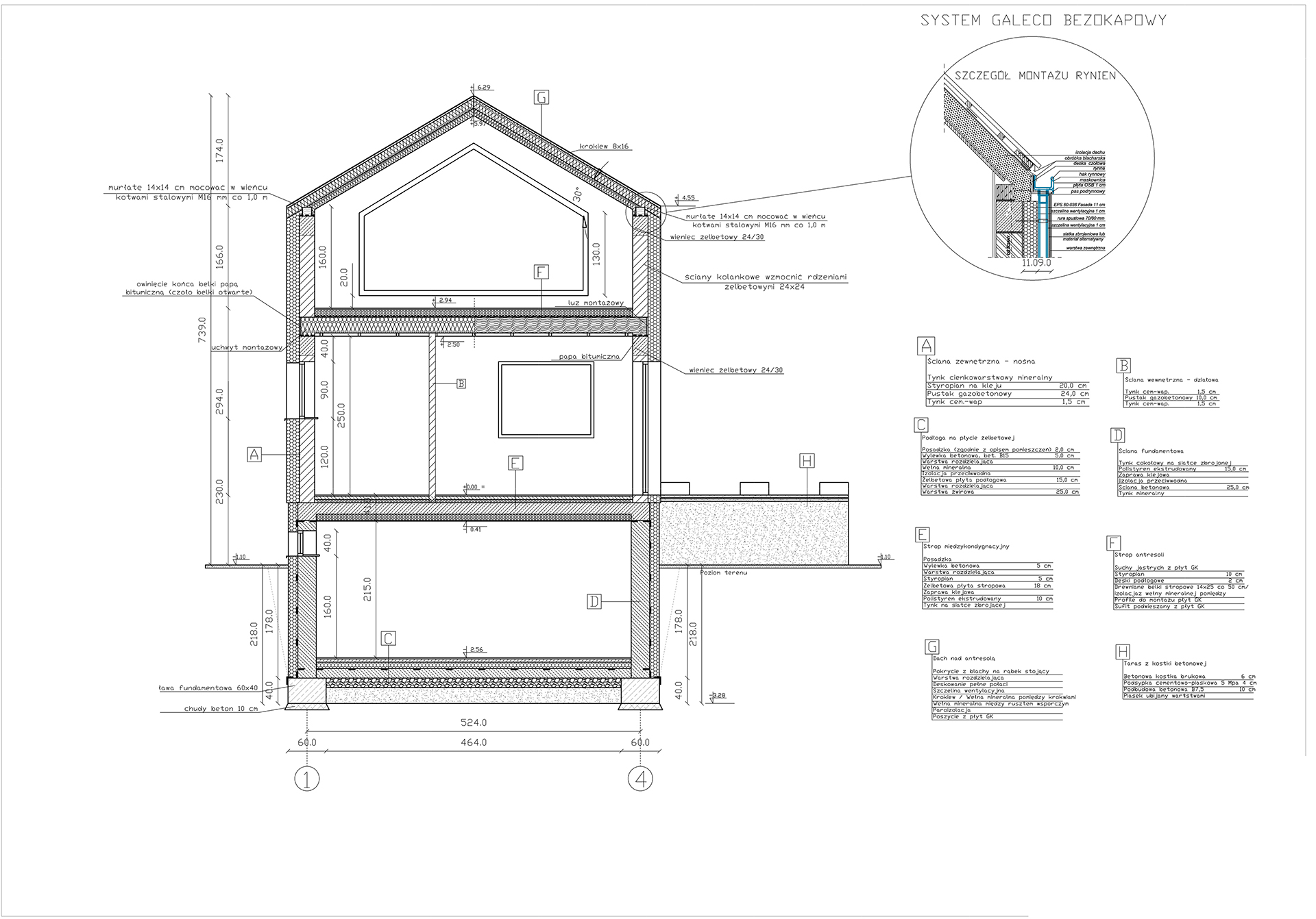
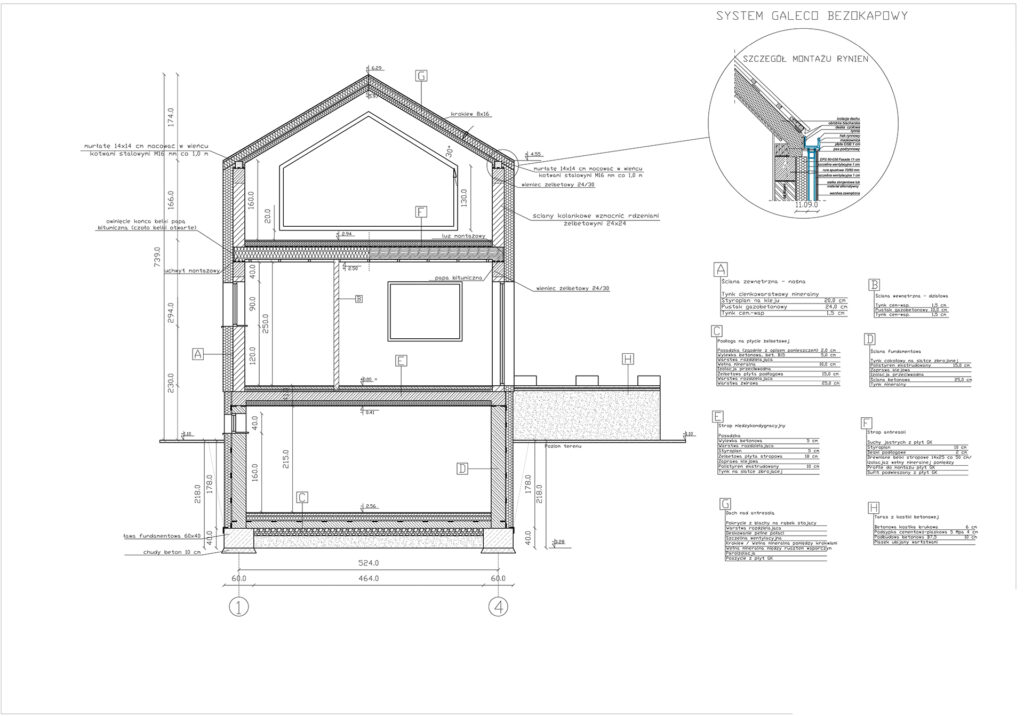
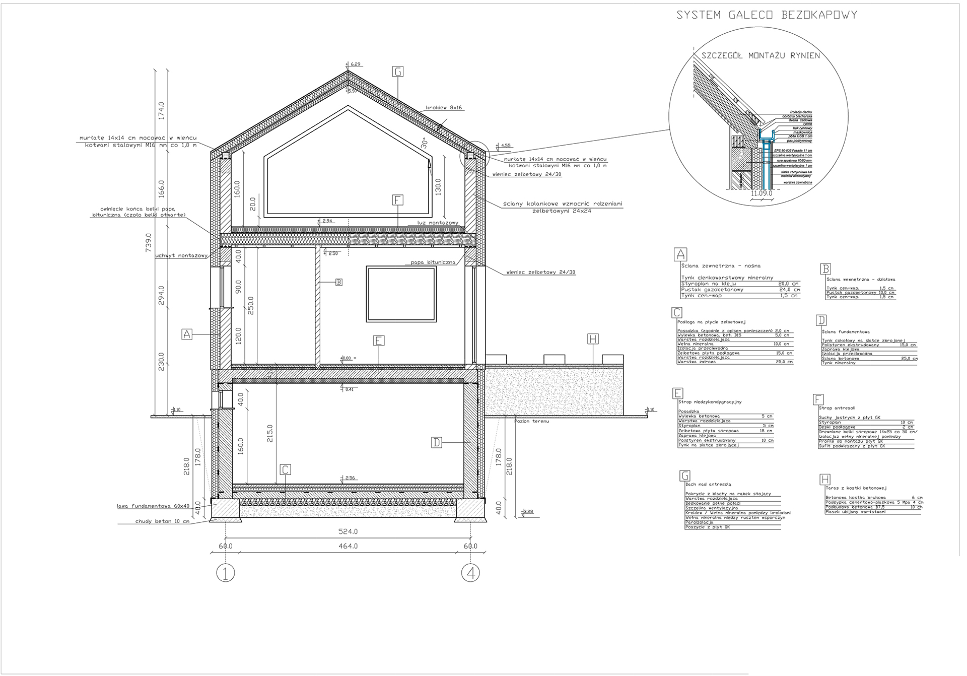
Budynek zaprojektowano w technologii tradycyjnej murowanej ze stropem żelbetowym nad piwnicą, oraz drewnianym nad parterem . Konstrukcja opiera się na ścianach zewnętrznych z bloczków gazobetonowych o grubości 24 cm oraz z wewnętrznych z bloczków gazobetonowych grubości 12 cm na zaprawie cementowo-wapiennej . Dom przykryty dachem dwuspadowym o konstrukcji drewnianej krokwiowej. Posadowienie bezpośrednie na ławach fundamentowych.
Strop nad piwnicą żelbetowy monolityczny, gr. 18 cm, zbrojony krzyżowo. Strop nad parterem tworzą drewniane belki stropowe 14/25 cm w rozstawie osiowym 46 i 47 cm.
Ogrzewanie: pompa powietrze woda
Wentylacja: rekuperacja
W budynku brak komina oraz pomieszczenia na kotłownię. Można zmienić to w procesie adaptacji projektu, dodać kominy oraz pomieszczenie na piec na paliwo stałe.
Dach: blacha na rąbek stojący, można zmienić na dowolne pokrycie przy adaptacji
Technologia: murowany
Projekt zawiera:
Instalacje wod-kan. i C.O
Instalacje elektryczne
W projekcie znajdziecie 3 kondygnacje:
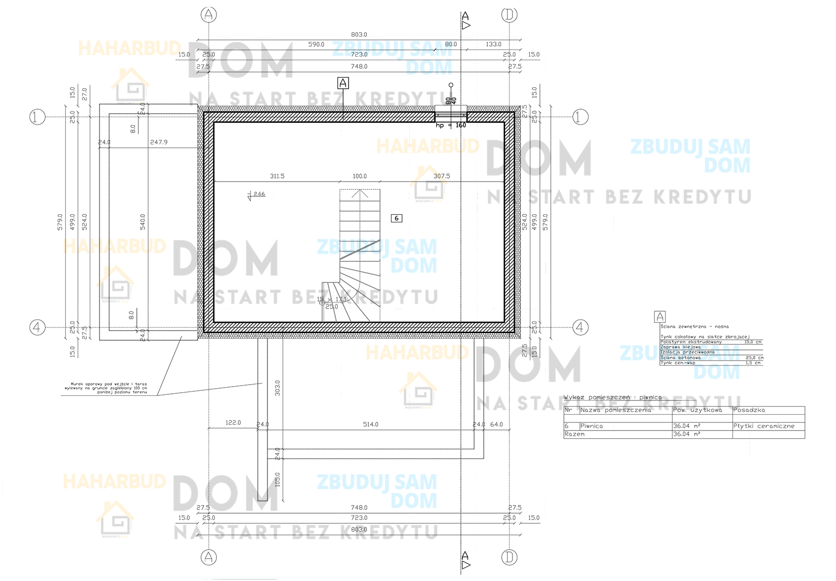
Piwnica: piwnica bez ścian działowych.
Pierwsza: salon, sypialnia, aneks kuchenny oraz łazienka z kabiną prysznicową, miejscem na pralkę oraz WC.
Druga: Dwa pokoje oraz łazienka z WC.
W każdym naszym projekcie została wpisana zgoda na zmiany, która nie wymaga już kontaktu z nami. Ta domyślna zgoda dopuszcza wykonanie zmian w zakresie:
– zmiany otworów okiennych i drzwiowych oraz okien połaciowych wg potrzeb Inwestora (likwidacja okien i drzwi, zmiana lokalizacji, powiększenie, pomniejszenie)
– przesunięcie drzwi, zmiana układu ścianek działowych
– zmianę stropu
– zmianę konstrukcji dachu
Więcej znajdziecie Państwo o adaptacji na filmie: https://youtu.be/ekqzthZgNow?t=304
W paczce otrzymają Państwo 3 egzemplarze projektu aktualne do nowych przepisów.
Dostawa od 1-14 średni czas realizacji zamówienia wynosi 5 dni roboczych.

Wysokość budynku: 7,39 m
Długość budynku: 5,88 m
Szerokość budynku: 8,12
Kąt nachylenia dachu: 30 st.
Minimalne wymiary działki: 13,88m x 16,12m
Wszystkie treści, materiały oraz elementy graficzne umieszczone na tej stronie są własnością naszej firmy. Są chronione prawem autorskim, które przysługuje Haharbud Sp. Z O.O. Wszelkie prawa zastrzeżone. Kopiowanie, powielanie i wykorzystywanie części lub całości informacji, zdjęć, grafik, zawartych na stronie w formie elektronicznej lub jakiejkolwiek innej bez zgody autora zabronione.
| Wersja | Zwykły, Odbicie lustrzane |
|---|
zł2,999.00
zł2,499.00