zł2,999.00 – zł4,999.00Zakres cen: od zł2,999.00 do zł4,999.00
15 osób przegląda ten projekt teraz
CompareSprawdź dokładną wycenę tego domu (114 m²) – za darmo, w 2 minuty
Zrób darmową wycenęBez zobowiązań • wynik w kilka minut
Przedstawiamy projekt „Dom na start podwyższony” – funkcjonalny dom murowany dla 4–5 osobowej rodziny o powierzchni 114,22 m².
To klasyczna, ponadczasowa bryła z dachem dwuspadowym, która łączy prostotę konstrukcji z nowoczesnym stylem.
Projekt powstał na bazie naszego popularnego domu o powierzchni 63 m² – na prośbę inwestorów został rozbudowany i podniesiony, dzięki czemu zyskał większą przestrzeń użytkową i wygodne poddasze.
To idealny wybór dla osób, które szukają ekonomicznego, solidnego i łatwego w budowie domu z poddaszem, oferującego wygodny układ pomieszczeń i ponadczasowy wygląd.
📦 Zamów projekt już dziś i rozpocznij budowę z pewnością i spokojem!
Dom z naszego projektu to idealne rozwiązanie na start, bez zbędnego zadłużania się w bankach na olbrzymie kwoty. Z nami zrealizujecie własne marzenia o domu bez kredytu. Uwierzcie nam, że życie bez obciążenia finansowego staje się przyjemniejsze.
Niesamowitą rzeczą w tym projekcie jest to, że wszystkie materiały z budowy będą udostępniane za darmo! Dzięki nim będziecie wiedzieli jak krok po kroku taki dom zbudować. Nie kupujecie projektu domu jak kota w worku. Wszystko znajdziecie na filmach. Jeżeli masz odrobinę chęci i chcesz żyć bez kredytu taki projekt jest właśnie dla Ciebie. Razem zbudujemy lepszą Polskę!.
Jest to pierwsza w Polsce taka inicjatywa, w której łączy się firma budująca duże domy i firma zajmująca się tylko małymi domami, wypracowany w 8 miesięcy projekt jest efektem tej współpracy.
Projekty dostępne do wysyłki do 10 dni roboczych, przeważnie 1-2 dni kurier Inpost
Szacunkowe koszty materiałów budowlanych bez robocizny na dzień 04.01.2026:
Koszt SSO (stan surowy otwarty) fundament, ściany, dach: 120000zł
Koszt SSZ dochodzą okna i drzwi zewnętrzne to już zależy od inwestora jakie wybierze.
Koszt stan deweloperski: w zależności od wyboru materiałów przez inwestora.
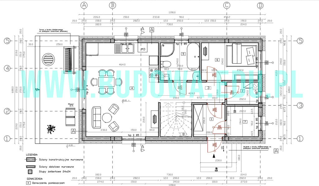
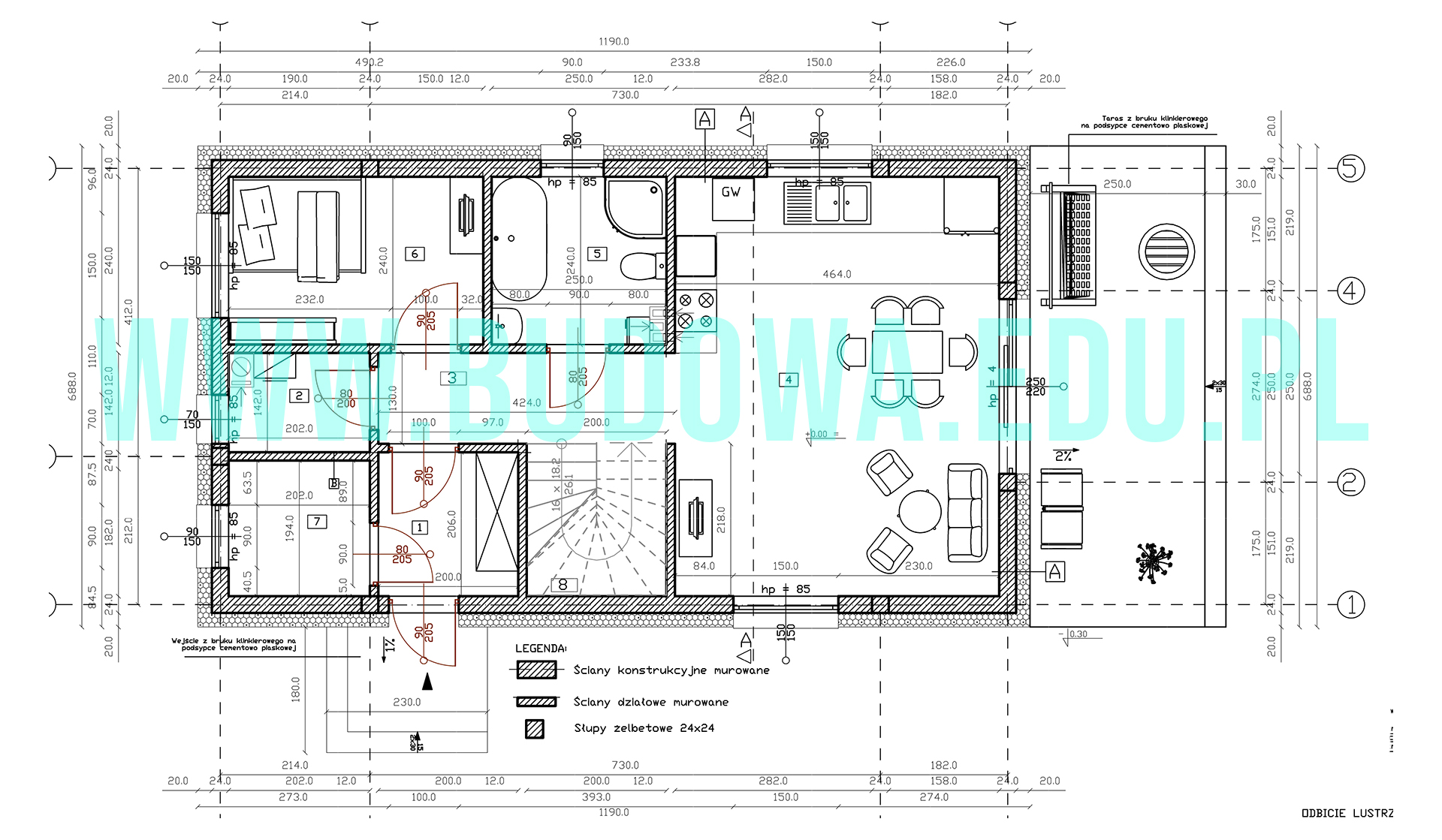
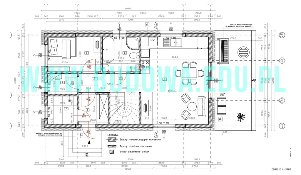
Dom wymiary:
Zestawienie powierzchni oraz charakterystyczne dane liczbowe:
Parter:
Wiatrołap: 4,12m2
Pomieszczenie techniczne: 2,85m2
Hall: 5,51m2
Kuchnia+salon: 27,81m2
Łazienka: 6 m2
Pokój: 8,73m2
Garderoba: 3,92m2
Klatka schodowa:4,36m2
Razem: 63,30m2
Piętro:
Hall: 3,29m2
Łazienka: 5m2
Pokój: 14,29m2
Garderoba: 9,20m2
Pokój: 11,86m2
Garderoba: 7,28m2
Razem: 50,92m2
Powierzchnia i wymiary:
Długość: 11,90m
Szerokość: 6,88m
Powierzchnia użytkowa: 114,22m2
Powierzchnia zabudowy budynku: 81,87m2
Wysokość pomieszczeń: 2,60m
Kubatura: 470,50m³
Wysokość budynku: 8m
Kąt nachylenia dachu: 45°
Technologia i konstrukcja:
Ściany: beton komórkowy
Dach: blachodachówka
Technologia: murowany
Co zawiera projekt:
Projekt zgodny z wszystkimi aktualnymi przepisami prawa budowlanego, w pełni kompletny.
3 egz projekt architektoniczny
3 egz projekt technicznyy
Instalacje wod-kan
Instalacje elektryczne
Charakterystyka energetyczna
W każdym naszym projekcie została wpisana zgoda na zmiany, która nie wymaga już kontaktu z nami. Ta domyślna zgoda dopuszcza wykonanie zmian w zakresie:
– zmiany otworów okiennych i drzwiowych oraz okien połaciowych wg potrzeb Inwestora (likwidacja okien i drzwi, zmiana lokalizacji, powiększenie, pomniejszenie)
– przesunięcie drzwi, zmiana układu ścianek działowych
– zmianę stropu
– zmianę konstrukcji dachu
Także podniesienie ściany kolankowej w celu uzyskania wyższego poddasza.
Dodatkowe zmiany jeżeli inwestor potrzebuje wystawiamy w ciągu 24 godzin.
Jaki jest kąt dachu? 45 stopni
Czy można zmienić kąt dachu na większy? Tak, wyrażamy zgodę na zmianę konstrukcji dachu
Jaki jest strop w domu murowanym? Strop żelbetowy monolityczny wylewany na mokro na budowie.
Jakie jest przewidziane źródło ciepła? kocioł gazowy, zmiana sposobu ogrzewania przy adaptacji
Czy mogę zmienić układ pomieszczeń w środku? Tak wyrażamy na to zgodę
Z czego będzie pokrycie dachu? Blacha na rąbek stojący
Czy w domu jest kotłownia? Tak na rzucie po wejściu do mieszkania po lewo pomieszczenie techniczne
Jakie jest ocieplenie w domu murowany? 20 cm styropian
Jaka jest konstrukcja dachu? Więźba krokwiowa
Czy mogę poszerzyć lub przedłużyć dom o 2m żeby uzyskać więcej miejsca? Tak, wyrażamy na to zgodę przy adaptacji.
Zawiera projekt garażu szkieletowego o powierzchni 35 m² oraz kompendium budowy jakich błędów nie popełnić.
Ten projekt to rozwiązanie dla osób, które chcą wybudować prosty i funkcjonalny dom przy stosunkowo niewielkich kosztach realizacji.
Kup projekt i rozpocznij budowę własnego domu.
Możesz zaoszczędzić nawet 50 000 – 100 000 zł na budowie domu
Chcesz zbudować dom samodzielnie i uniknąć kosztownych błędów?
Nasze poradniki pokażą Ci dokładnie, jak przejść przez każdy etap budowy – od fundamentów aż po wykończenie.
Dostęp natychmiast po zakupie
Zaoszczędzisz nawet kilkadziesiąt tysięcy złotych na robociźnie i błędach wykonawczych.
Masz pełną kontrolę nad budową i jakością wykonania każdego etapu.
Budujesz własny dom – dokładnie tak, jak chcesz, bez kompromisów.
„Niech moc będzie z Tobą. Zaszczepiłeś we mnie wielką nadzieję i burzę pomysłów. Dziękuję.”
– Alfred„Dzięki Tobie zmieniłem kompletnie podejście do mojej przyszłości i wyznaczyłem sobie realne cele związane z budową własnej oazy spokoju.”
– Kuba„Projekt idealny! To co Pan stworzył, daje nadzieję i możliwości ludziom, dla których już jej nie było.”
– Magda„Wojtku, ziarno które posiałeś, przyniesie efekty w postaci setek wymarzonych domków. Wielkie dziękuję.”
– Zbyszek„Twój kanał dodał mi odwagi i pokazał, że mały dom i spokojne życie są naprawdę w zasięgu ręki. Świat potrzebuje takich ludzi jak Ty.”
– Patryk„Dzięki Tobie wiem, że nasze marzenie o własnym małym domu może stać się piękną rzeczywistością.”
– Justyna| Pakiet | Pakiet podstawowy zwykły, Pakiet podstawowy odbicie, Pakiet kompletny zwykły, Pakiet kompletny odbicie, Pakiet PREMIUM zwykły, Pakiet PREMIUM odbicie |
|---|
zł2,999.00 – zł4,999.00Zakres cen: od zł2,999.00 do zł4,999.00
zł2,999.00 – zł4,999.00Zakres cen: od zł2,999.00 do zł4,999.00