Planując budowę niewielkiego, ale funkcjonalnego domu dla czteroosobowej rodziny, warto zwrócić uwagę na projekt “Dom na start w stylu stodoły”. Ten 90-metrowy dom łączy w sobie nowoczesny design z praktycznymi rozwiązaniami, oferując przestronne wnętrze oraz antresolę, która dodaje mu wyjątkowego charakteru.
Przemyślany układ pomieszczeń
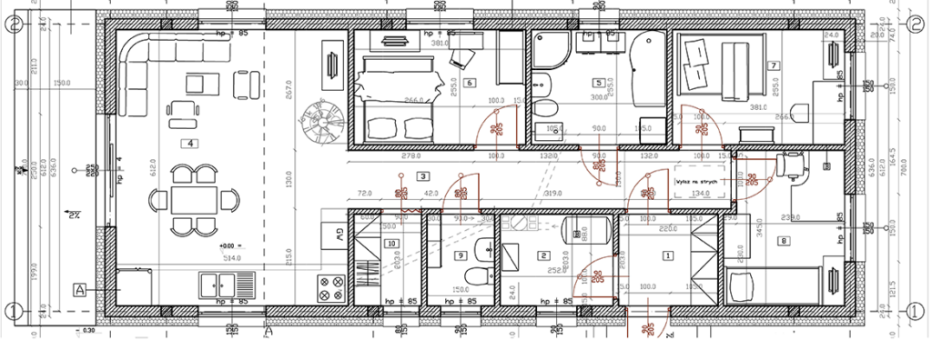
Parter o powierzchni 93,96 m² został zaprojektowany z myślą o komforcie mieszkańców. Znajdują się tu trzy przytulne sypialnie (9,72 m², 9,66 m² i 8,83 m²), przestronny salon z aneksem kuchennym (31,46 m²), łazienka (7,65 m²), oddzielne WC (3,04 m²) oraz praktyczna spiżarnia (3,04 m²). Dodatkowo, wiatrołap (4,47 m²) i hall (11,01 m²) zapewniają wygodne wejście i komunikację wewnątrz domu.
Dom stodoła – projekt domu stodoła. 94m2.
Antresola – dodatkowa przestrzeń dla rodziny
Jednym z atutów tego projektu jest antresola o powierzchni 25,09 m², która może pełnić funkcję dodatkowej przestrzeni rekreacyjnej, biura czy miejsca zabaw dla dzieci. Ponadto, dostępny jest strych o powierzchni 40,64 m², idealny do przechowywania sezonowych przedmiotów lub adaptacji na dodatkowe pomieszczenia.
Klasyczna bryła z nowoczesnym akcentem
Dom charakteryzuje się klasyczną bryłą z dachem dwuspadowym o kącie nachylenia 45 stopni, co nadaje mu ponadczasowy wygląd. Pokrycie dachu wykonane z blachy na rąbek stojący zapewnia trwałość i estetykę. W projekcie przewidziano również możliwość modyfikacji konstrukcji dachu oraz układu pomieszczeń, aby dostosować dom do indywidualnych potrzeb inwestora.
Energooszczędność i nowoczesne technologie
W projekcie uwzględniono nowoczesne rozwiązania grzewcze, takie jak piec na paliwo stałe lub kocioł gazowy, z możliwością zmiany sposobu ogrzewania podczas adaptacji. Ocieplenie domu zapewnia 20 cm warstwa styropianu, co przekłada się na energooszczędność i komfort cieplny przez cały rok.
Elastyczność projektu
Projekt “Dom na start w stylu stodoły” oferuje dużą elastyczność w zakresie modyfikacji. Inwestorzy mogą zmieniać układ okien i drzwi, przesuwać ścianki działowe, a nawet powiększać antresolę czy przedłużać budynek, aby uzyskać więcej przestrzeni. Dzięki temu każdy może dostosować dom do własnych potrzeb i upodobań.
Podsumowanie
“Dom na start w stylu stodoły” to doskonały wybór dla rodzin 2+2 poszukujących kompaktowego, ale przestronnego domu z antresolą. Przemyślany układ pomieszczeń, możliwość modyfikacji projektu oraz nowoczesne rozwiązania sprawiają, że jest to idealna propozycja dla osób ceniących funkcjonalność i estetykę.










Add comment